
Dom Letni na plaży
Lokalizacja: Donnalucata, Sycylia
Powierzchnia: 110m² + 170m² tarasu wraz atrium
Projekt: 2022
Realizacja: 2023
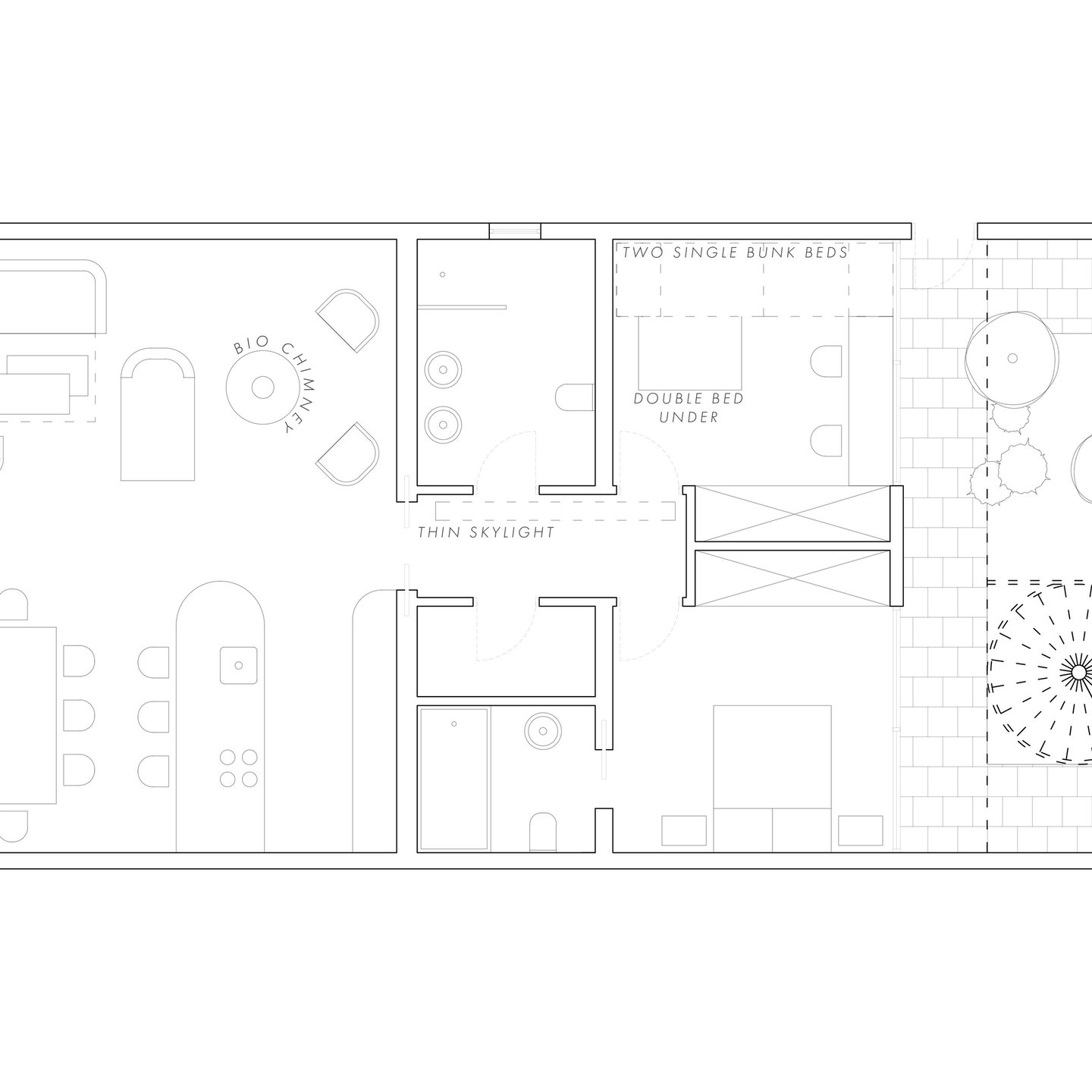
Przebudowa parterowego domu w urokliwym regionie Ragusa, na południu Sycylii. Projekt zakładał stworzenie przestrzeni wypoczynkowo-weekendowej dla rodziny oraz gości. Budynek usytuowany jest kilka kroków od prywatnej plaży, co zostało dopełnione poprzez przesuwną, przeszkloną ścianę w strefie dziennej, z której rozpościera się widok na morze. W celu należytego wyeksponowania malowniczej lokalizacji, zaprojektowano na dachu taras, na który prowadzi zewnętrzna, rzeźbiarska klatka schodowa. Strefy sypialniane zostały połączone z intymnym zielonym atrium. Całość założenia nawiązuje do stylu śródziemnomorskiego, co zostało dodatkowo zaakcentowane użyciem naturalnych, lokalnych materiałów.
