












Osiedle Domów Szeregowych
Lokalizacja: Wiązownica
Powierzchnia inwestycji: 2700m² (ETAP I)
Powierzchnia zabudowy: 530m²
Powierzchnia użytkowa segmentu: 82-91m²
Projekt: 2024
Realizacja: 2025
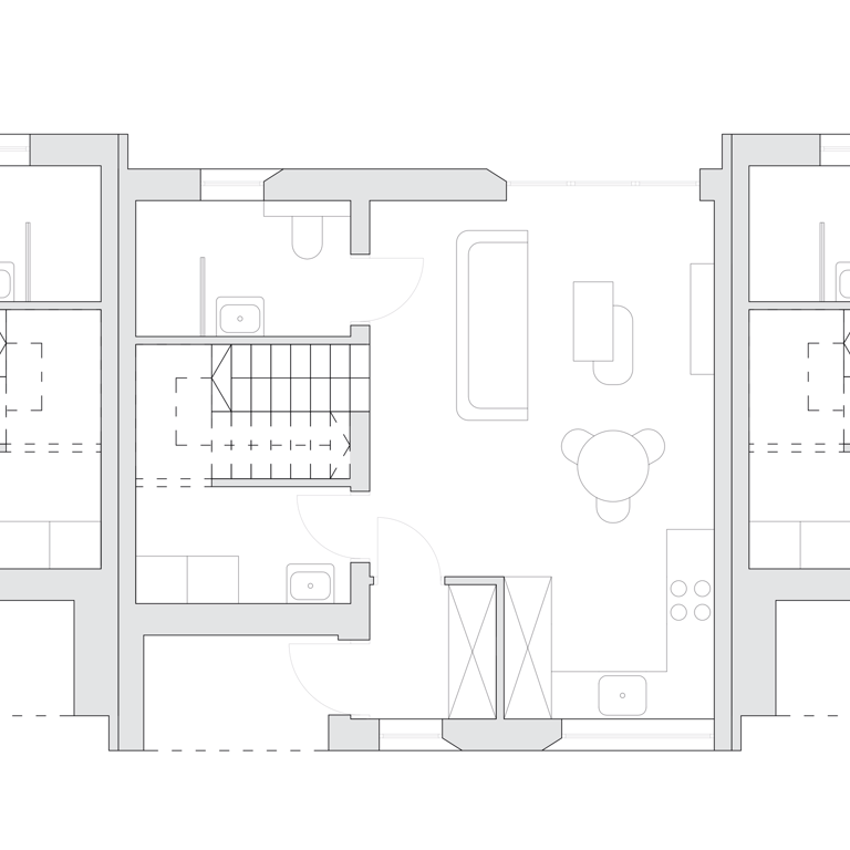
Osiedle budynków szeregowych w miejscowości Wiązownica, położonej nieopodal wioski wypoczynkowej Radawa na Podkarpaciu. Pierwszy etap inwestycji obejmował budowę dziewięciu niezależnych domów jednorodzinnych. Każdy segment posiada dwa piętra mieszkalne, możliwe do adaptacji poddasze, własny ogród oraz dedykowane miejsca postojowe na ogólnodostępnych parkingach. Architektura budynków nawiązuje do wzorców skandynawskich, charakteryzuje się oszczędnością i prostotą formy. Minimalizm elewacji podkreśla monochromatyczna paleta barw, a asymetryczny układ stolarki uzupełnia detal w postaci glifów okiennych. Wszystkie obiekty zaprojektowano w sposób zrównoważony, uwzględniając szereg rozwiązań ekologicznych, m.in. pompy ciepła oraz panele fotowoltaiczne.
