
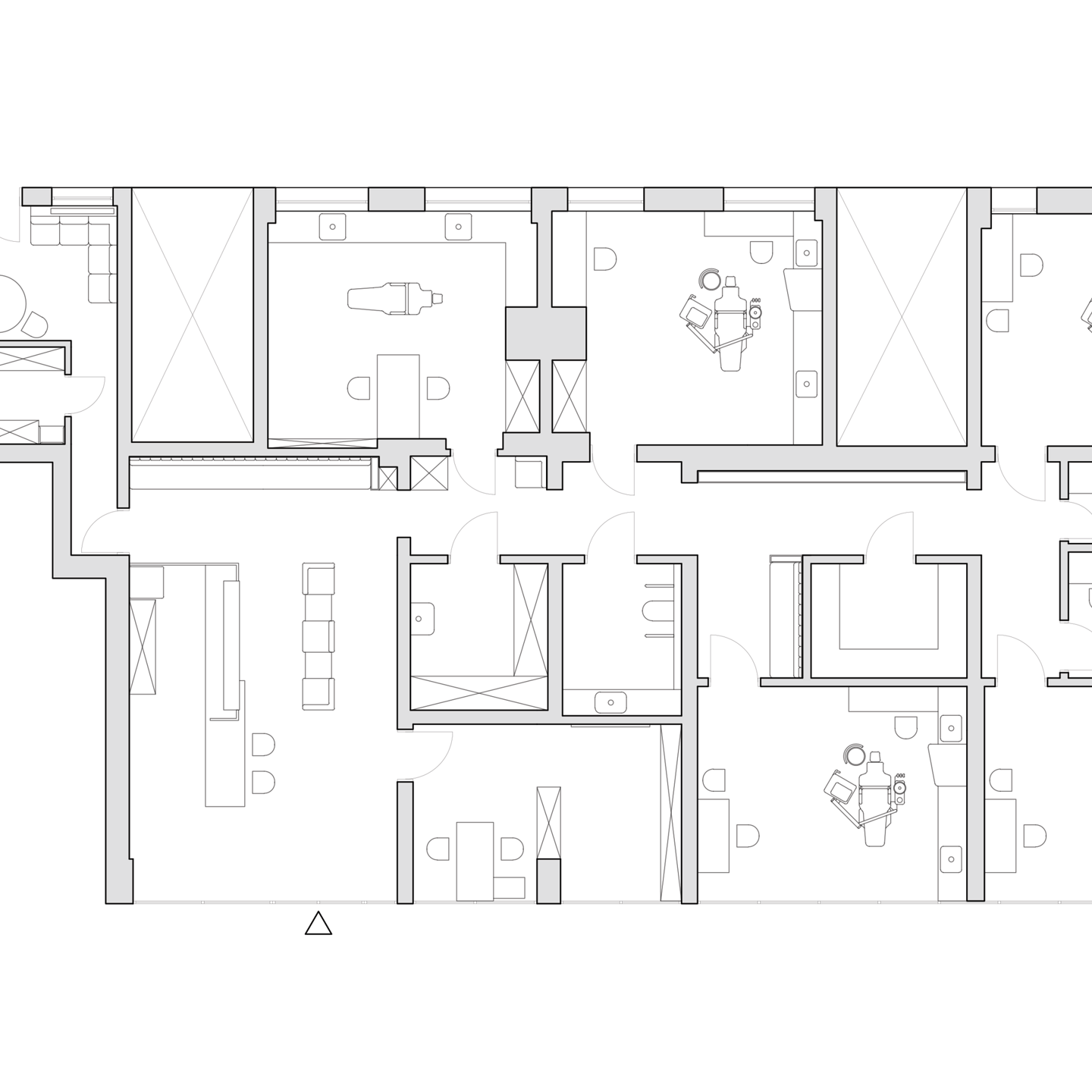
Klinika Stomatologiczna
Lokalizacja: Jarosław
Powierzchnia: 252m²
Projekt: 2023
Realizacja: 2023
Projekt modernizacji centrum medycznego wraz z jego rozbudową o dodatkową przestrzeń lokalu obok. Przebudowa budynku z końca lat 70-tych wiązała się z dopasowaniem do ściśle określonych ram istniejącego ustroju konstrukcyjnego. Układ funkcjonalny został całkowicie przearanżowany pod kątem ergonomicznym poprawiając zarówno ogólne warunki pracy lekarzy jak i odczucia samych pacjentów. W klinice oprócz pomieszczeń stomatologicznych znajdują się m.in. nowoczesna pracownia 3D, studio foto oraz gabinet medycyny estetycznej.
