



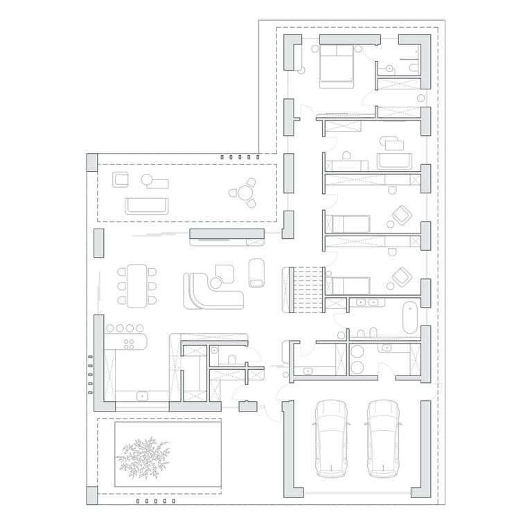
Dom Pod Lasem
Lokalizacja: Raniżów
Powierzchnia: 217m² + 42m² garażu
Projekt: 2026
Realizacja: 2026
Parterowy dom położony na skraju półprywatnego, brzozowo-iglastego lasu. Budynek zaprojektowano na planie półkrzyża, którego centralny punkt stanowi przestronna strefa dzienna z jadalnią. Otwiera się ona bezpośrednio na zadaszony taras przy basenie, zacierając tym samym granicę między wnętrzem a otoczeniem. Elewację wykończono kontrastowymi materiałami: lamelami z naturalnego jesionu oraz czarnymi płytami kompozytowymi o strukturze kamienia. Wizualną klamrę dla całości stanowi swoista biała rama. Od frontu wydziela ona reprezentacyjny podcień wejściowy z przenikającą go zielenią, natomiast w części prywatnej ogrodu formuje zadaszenie z łamaczami światła.
