




Dom Kostka
Lokalizacja: Radymno
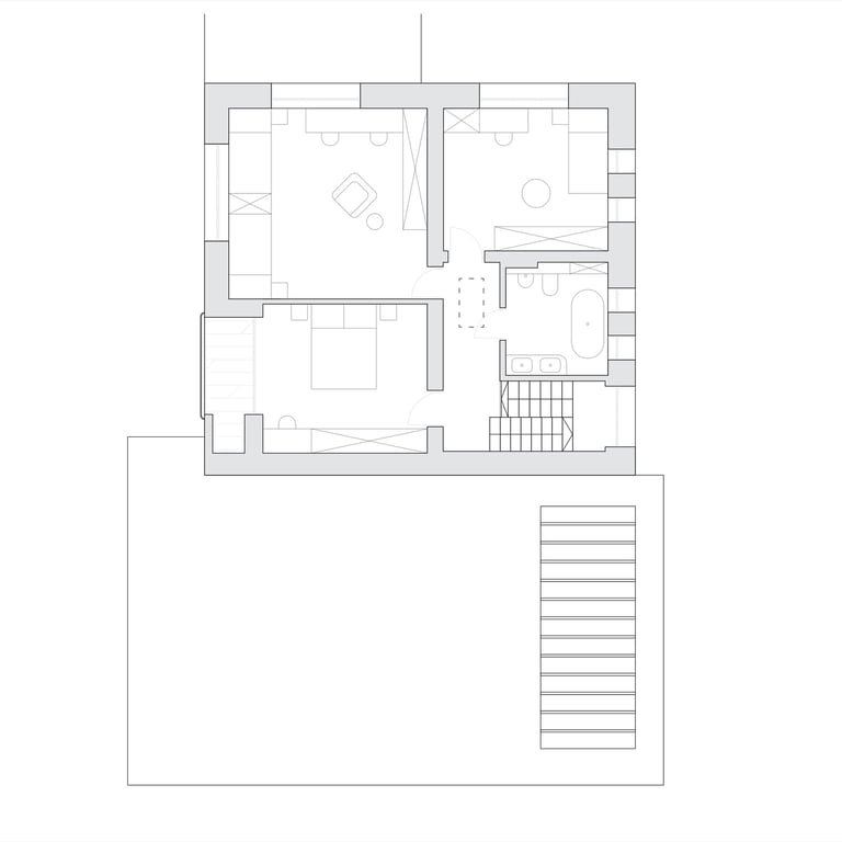
Powierzchnia: 140m² + 45m² garażu
Projekt: 2024
Realizacja: 2025
Rozbudowa ceglanego domu kostki z lat 70. Projekt przebudowy pozwolił nie tylko na uzyskanie dodatkowej przestrzeni użytkowej, ale również na zupełnie nowe możliwości aranżacyjne. Od strony wewnętrznego ogrodu zaprojektowano otwartą kuchnię wraz z jadalnią, przestronnym salonem oraz bezpośrednim wyjściem na taras. Umiejscowienie oryginalnej stolarki okiennej zostało zachowane, a nowoprojektowane okna nawiązują do istniejących, w pełni utrwalając pierwotny charakter domu. Z perspektywy ulicy fasada budynku nie posiada okien, by zapewnić mieszkańcom odpowiednią prywatność. Bryłę obiektu cechuje minimalizm i harmonia, zarówno jeśli chodzi o prostotę jego formy jak i monochromatyczny dobór kolorystyczny.
