




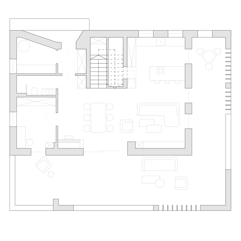
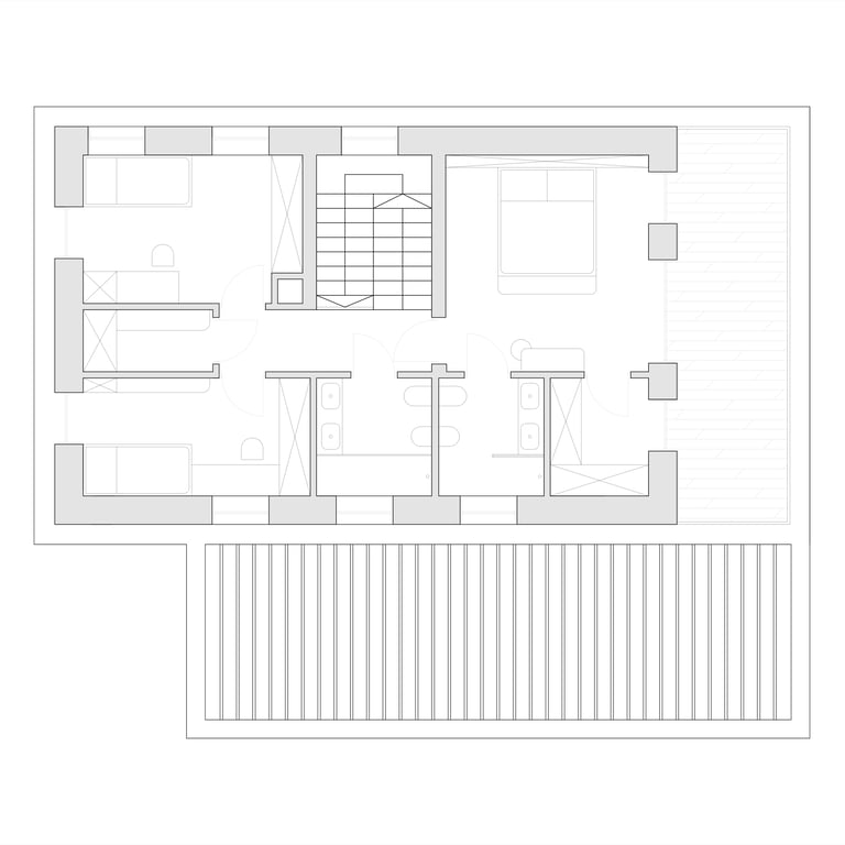
Dom Dyrygenta
Lokalizacja: Przeworsk
Powierzchnia: 142m² + 35m² garażu
Projekt: 2025
Realizacja: 2026
Dom młodego małżeństwa położony w spokojnej, wiejskiej okolicy doliny rzeki Mleczki. Koncepcja budynku opiera się na czytelnym podziale na dwie bryły odpowiadające kondygnacjom. Parter wykończono rustykalnym tynkiem wapiennym, przywodzącym na myśl architekturę śródziemnomorską, piętro natomiast obłożono deskami z naturalnego drewna w ciepłym odcieniu. Kompozycję dopełnia wolnostojący garaż, stanowiący formalny rewers dla domu. Część dzienną zaprojektowano tak, by wnętrze płynnie przenikało się z otoczeniem. Kuchnia otwiera się na kameralną, półotwartą przestrzeń ukrytą pod balkonem głównej sypialni, a przestronny salon rozszerza się o główny taras, zadaszony łamaczami światła, które tworzą przyjemny mikroklimat w letnie popołudnia. Na parterze znajduje się także biuro pana domu – zawodowego muzyka – odpowiednio przystosowane akustycznie i posiadające indywidualne wyjście na półprywatną część tarasu.
